Inaugurata a Polegge Piazza Norma Cossetto

Questa mattina il sindaco Francesco Rucco e l’assessore alle infrastrutture Mattia Ierardi hanno inaugurato piazza Norma Cossetto, nel quartiere di Polegge. Erano presenti anche le cugine di Norma Cossetto, Loredana e Diana, e varie autorità tra cui l’assessore regionale Elena Donazzan e il consigliere regionale Silvia Maino, il consigliere provinciale Leonardo De Marzo, il presidente del comitato provinciale di Vicenza dell’Associazione Nazionale Venezia Giulia e Dalmazia (ANVGD) Coriolano Fagarazzi, alcune rappresentanti dell’associazione Vicentine per Norma Cossetto.
Come deciso dalla giunta comunale, su indicazione della commissione consultiva per la toponomastica cittadina, la piazza è stata dedicata a Norma Cossetto, studentessa universitaria istriana nata nel 1920 e vittima del massacro delle foibe.
“Con grande emozione inauguriamo un’opera pubblica importante per Vicenza – ha spiegato il sindaco Francesco Rucco –, una piazza attesa da anni dai residenti, uno spazio di aggregazione prezioso che diventerà protagonista della vita del quartiere e che abbiamo intitolato a Norma Cossetto, simbolo della violenza di uno stato totalitario che ha ucciso migliaia di persone. È stato un percorso amministrativo lungo, che ha preso il via con l’amministrazione Variati e che è stata portata a termine da questa amministrazione. Nei prossimi anni realizzeremo altre piazze come questa nei vari quartieri con una programmazione di natura economico-finanziaria che ci permetterà di restituire ai cittadini spazi in disuso dove stare assieme e organizzare eventi”.
“Finalmente inauguriamo questa piazza molto attesa dai residenti del quartiere alla quale abbiamo voluto dare un’intitolazione importante – ha dichiarato l’assessore alle infrastrutture Mattia Ierardi –. Mancano ancora alcuni piccoli interventi conclusivi di sistemazione della pavimentazione, che abbiamo dovuto posticipare a causa della concomitanza di un cantiere privato limitrofo che come unica via di accesso sfrutta parte del sedime della nuova piazza. Grazie a questo investimento andremo a completare la riqualificazione della zona creando un’area di aggregazione con posti auto ordinati, spazi verdi e per ospitare eventi e manifestazioni, panchine e punti luce su tutta la piazza”.
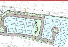
La nuova piazza
La piazza, molto attesa dai residenti, si estende su una superficie di circa 2.400 metri quadrati con una particolare forma “a sette” in un’area, inizialmente di proprietà privata, ceduta gratuitamente al Comune nel giugno del 2017. La piazza si trova in posizione baricentrica rispetto al territorio di Polegge e fronteggia, sul versante nord, la Chiesa di San Giovanni Evangelista e la scuola, posizionate entrambe una a fianco all’altra, a sud di strada di Polegge.
Il nuovo spazio urbano punta a diventare un importante punto di riferimento per le attività della comunità e delle vicine scuola e Chiesa, oltre che un ambiente gradevole per la sosta, la relazione e il ritrovo degli abitanti.
Il progetto ha visto la realizzazione di una piazzetta di testata che si affaccia su strada di Polegge e consente l’accesso all’area tramite un percorso centrale esclusivamente pedonale, asse portante a divisione delle varie zone e di collegamento con la piazza vera e propria a nord avente una conformazione ”a ventaglio”.
Lungo il percorso sono state realizzate alcune aree di sosta e messe a dimora piante, a rimarcarne la direzione.
A est dell’area, lungo il percorso pedonale, è stato ricavato un parcheggio con 15 posti auto che potrà essere integrato, in caso di necessità o di manifestazioni, con altri 12 posti auto nella parte di piazza “a ventaglio”.
Accanto all’area per le manifestazioni è stata predisposta una piastra destinata a punto di ritrovo per le associazioni.
Sono stati realizzati, inoltre, nuovi impianti di elettricità, gas e acqua e di illuminazione, oltre a caditoie e griglie sia sulla piazza, sia sui percorsi carrai e pedonali, per facilitare un rapido smaltimento delle acque piovane.
Per consentire il corretto drenaggio delle acque superficiali, inoltre, le pavimentazioni sono state realizzate tutte in masselli autobloccanti, di diversa tipologia e colorazione.
Per quanto riguarda il verde, sono state piantate essenze autoctone ed è stato posato un tappeto erboso su tutte le aree non pavimentate.
Sono stati installati panchine ed elementi di arredo urbano.
Il progetto e la direzione lavori sono stati affidati allo studio “architetturagreggio” di Rubano (PD) dell’architetto Greggio Fiorenzo; l’intervento è stato realizzato dalla ditta Greentel srl di Santa Giustina in Colle (PD) con la supervisione dell’assessorato alle infrastrutture.
Su strada di Polegge, infine, è stata realizzata una piattaforma stradale per dare continuità alla piazza fino al fronte opposto della strada e ridurre, nel contempo, la velocità dei veicoli in transito. É stata, così, razionalizzata la segnaletica orizzontale e verticale con un riordino generale anche delle fermate autobus.
Questi lavori sono stati progettati e seguiti dai tecnici del servizio Infrastrutture e del servizio Mobilità del Comune di Vicenza.
In fase di realizzazione dell’intervento, si è reso necessario eseguire la bonifica bellica dell’area a seguito di ritrovamenti durante gli scavi.
Inoltre, in seguito al parere della Soprintendenza Archeologia, Belle Arti e Paesaggio per le Province di Verona, Rovigo e Vicenza, è stata chiesta l’assistenza archeologica in corso d’opera per la posa dei sottoservizi.
L’opera, finanziata con mutuo, è costata complessivamente circa 250 mila euro.
Ad oggi, essendo in corso il cantiere edile limitrofo, che come unica via di accesso sfrutta parte del sedime della nuova piazza, si è reso necessario posticipare la posa degli ultimi metri di pavimentazione in betonelle della via di accesso ai nuovi parcheggi pubblici, al fine di scongiurarne il danneggiamento da parte dei mezzi d’opera in transito.
Intitolazione a Norma Cossetto
Lo scorso 27 gennaio la giunta comunale, su indicazione della commissione consultiva per la toponomastica cittadina, ha dato il via libera all’intitolazione della nuova piazza di Polegge a Norma Cossetto.
A soli 23 anni, pochi giorni dopo l’armistizio dell’8 settembre 1943, nella notte tra il 4 e il 5 ottobre, Norma Cossetto è stata arrestata, brutalmente torturata e stuprata e, infine, gettata con altri prigionieri in una foiba nei pressi di Villa Surani, in Istria. Come riconoscimento del suo coraggio e amore per la patria, nel 2005 il Presidente della Repubblica Carlo Azeglio Ciampi le ha assegnato la Medaglia d’oro al valor civile. Nel 2011 l’università di Padova, dopo averle conferito nel 1949 la laurea ad honorem, le ha intitolato una targa nel cortile nuovo di palazzo del Bo.













