Riaprirà a Vicenza il Cinema ‘Roma’ e sarà splendido. Cinque sale, bar, ristorante e spazio culturale (foto e rendering)

ISCRIVITI AL CANALE WHATSAPP DI TVIWEB PER RIMANERE SEMPRE AGGIORNATO
Foto e rendering in fondo
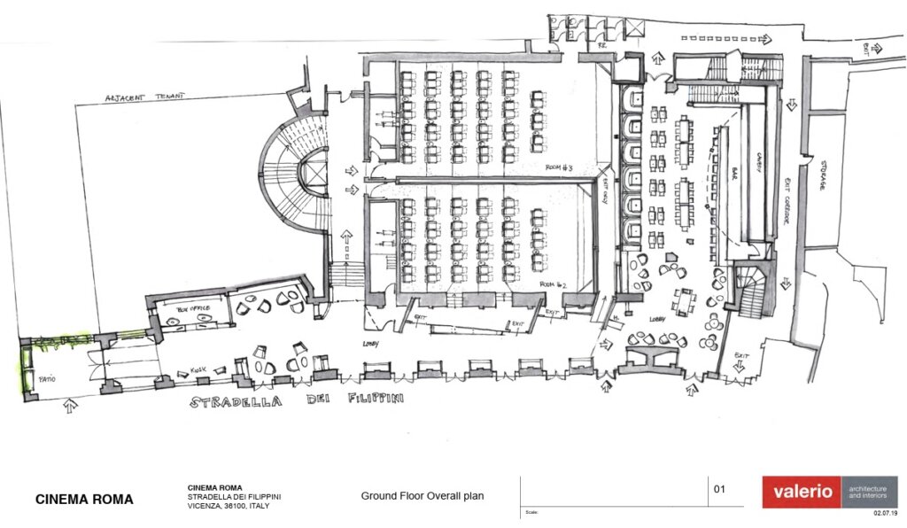
Il Cinema Roma sta per tornare nel cuore di Vicenza. Dopo tre anni di chiusura, lo storico multisala verrà completamente riqualificato e riaprirà entro dicembre 2025 con una nuova veste: non solo cinque moderne sale cinematografiche, ma anche un bar, un ristorante e spazi pensati per fare cultura e attrarre cittadini e visitatori in centro storico.
L’annuncio ufficiale è arrivato questa mattina direttamente dal sindaco Giacomo Possamai e dal proprietario dell’edificio Vasco Valerio, durante un sopralluogo nei locali in fase di rinnovamento.
«Il Cinema Roma è uno dei luoghi del cuore dei vicentini – ha dichiarato Possamai –. Dopo un anno e mezzo di dialogo con il proprietario, oggi presentiamo un progetto concreto. Non sarà solo un multisala, ma un luogo vivo per tutta la città: un punto d’incontro dove vedere un film, bere un caffè, cenare e soprattutto fare cultura.»
Il progetto di rilancio non si limita quindi alla sola riapertura delle sale cinematografiche. L’obiettivo è creare un’esperienza completa, che incentivi le persone a trascorrere più tempo in centro, unendo cinema e socialità.
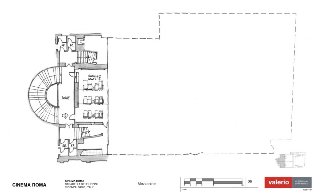
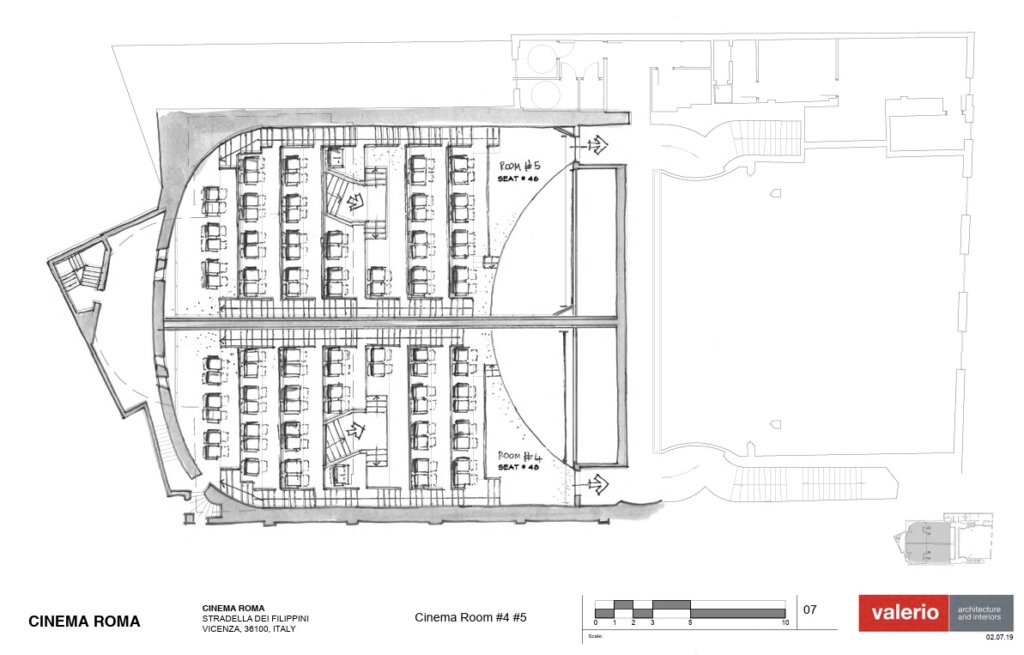
Le cinque sale previste – due da 70 posti, due da 50 posti e una più intima da 20 posti prenotabile su richiesta – saranno dotate di ogni comfort, con poltrone reclinabili elettriche e distanze maggiori tra le file, in particolare nelle due sale superiori, dove si prevede un’interfila di 2,20 metri.
Accanto al cinema, sorgeranno:
- Un bar aperto anche durante il giorno, con tavolini all’esterno;
- Un ristorante pensato sia per i cinefili che per chi cerca un ambiente accogliente e moderno, dotato anche di maxischermo.
Il multisala era stato inaugurato nel dicembre 2000 e ha chiuso i battenti nel luglio 2022. La riapertura rappresenta una risposta concreta alle richieste della cittadinanza e dell’amministrazione comunale per restituire vita e funzione a uno spazio simbolico della città.
I lavori di demolizione sono già partiti. Il Cinema Roma riaprirà a dicembre 2025, mentre per l’apertura del ristorante ci vorrà qualche mese in più.












































