Il piano urbanistico attuativo “Una piazza per Saviabona” non si farà

Il piano urbanistico attuativo “Una piazza per Saviabona” non si farà. Questa mattina l’assessore al territorio ha informato la giunta che l’istanza di approvazione del privato è stata dichiarata improcedibile dal direttore del servizio Urbanistica e il procedimento è stato archiviato.
Ciò è la conseguenza della verifica dell’inadempimento degli obblighi assunti con la convenzione sottoscritta tra privato e Comune nell’ottobre del 2013 per l’attuazione del piano.
Il provvedimento con il quale il direttore del servizio Urbanistica comunica l’archiviazione del procedimento evidenzia, in particolare, che la valutazione della prevista indagine ambientale “non ha avuto esito positivo per carenza documentale, di analisi ambientali e incompletezza territoriale, come risulta dai pareri espressi dal settore Ambiente e da Arpav”. Inoltre sottolinea “la mancata cessione delle aree a favore del Comune e della parrocchia di S. Maria Ausiliatrice nei termini indicati dalla convenzione”.
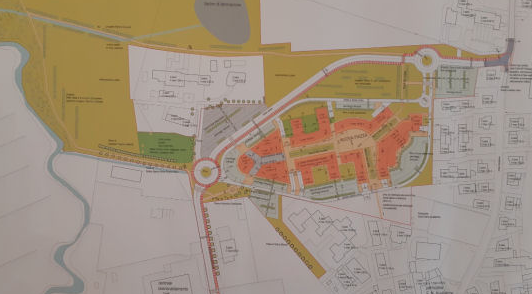
Il piano prevedeva nuove edificazioni per 27.900 metri quadrati di superficie tra residenziale, social housing, commerciale e direzionale, con edifici alti fino a 17 metri. Le opere a vantaggio del pubblico, comprendenti la viabilità e le aree per la realizzazione di parte del Parco Astichello, erano state quantificate in circa 5 milioni di euro.
















